



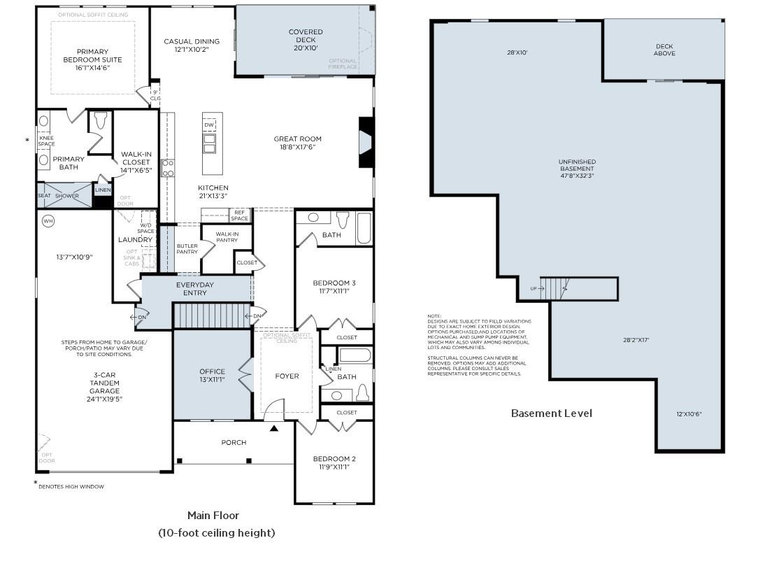
The inviting foyer and flex room of the popular Tahoma plan seamlessly flows into the expansive great room with access to a large patio. Open to a bright casual dining area, the expertly designed kitchen is highlighted by a large center island with breakfast bar, plenty of counter and cabinet space, as well as a conveniently located butler's pantry and ample walk-in pantry. The gorgeous primary bedroom suite is enhanced by a generous walk-in closet and an elegant primary bath complete with dual vanities, a large luxe shower with seat. Full Walkout Basement ready to finish with windows, 6' sliding door, plumbing rough in and 100 amp electrical panel. Located in The Pines at Sugar Creek, a vibrant 55+ community designed for low-maintenance living and an active lifestyle. Community amenities are underway & include a pool, spa, pickleball, tennis & bocce courts, fitness center, clubhouse & more. Pricing reflects the base home price, structural options and homesite premium only. Prices subject to change.
| 2 months ago | Price changed to $874,000 | |
| 2 months ago | Listing updated with changes from the MLS® | |
| 4 months ago | Listing first seen on site |
Did you know? You can invite friends and family to your search. They can join your search, rate and discuss listings with you.